+34 971 698 242

Unweit der Goldenen Meile von Palma - dem bekannten Paseo del Borne und nur 2 Gehminuten von der Jaime lll mit seinen edlen Boutiquen und Geschäften entfernt, liegt dieses Stadthaus in einer kleinen und ruhigen Seitenstraße. Nur einen Steinwurf von der „Straße der Galeristen“, finden Sie eine Vielzahl zeitgenössischer internationaler Kunsthandlungen.
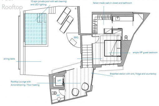
Das Highlight dieses Stadthauses bietet die private Dachterrasse, welche neben einem überdachten Bereich mit kleiner Breakfast-Küche, über ein Sonnendeck mit Lounge, privaten Pool zum Abkühlen und einer BBQ-Aussenküche verfügt.
Der Eingang bietet ein traditionelles Ambiente mit einem typisch mallorquinischen Steinboden und modernen Holzelementen. Die private Garage mit aufwendiger Deckengestaltung, indirekten Lichtelementen und Mares-Steinwand, bietet ausreichend Platz für ein Auto. Neben einer integrierten Einbauküche führt ein Aufzug über alle Ebenen des Hauses bis hin zur Terrasse.
Der Wohnbereich mit offener Küche, befindet sich im 2. Obergeschoss der Immobilie. Die elegante Designerküche von Poliform, mit Kochinsel in edlem italienischen Naturstein und Snackbar in Holz, ist das Herz dieser Etage. Ein eleganter Lounge-Bereich mit einem in Stein und Holz eingelassenen Gas-Kamin der Marke Kalfire, sorgt für ein gemütliches Ambiente auch in der kühleren Jahreszeit.
Im 1. Obergeschoss befindet sich das großzügige Hauptschlafzimmer mit eigenem Badezimmer. Die elegante Suite, die mit 3,5m Deckenhöhe begeistert, setzt stilistisch neue Akzente. Matt schwarze Armaturen und Regendusche von ICONICO, sowie ein begehbarer Kleiderschrank sorgen für einen individuellen Style. Ein zusätzliches Gästezimmer, ebenfalls mit eigenem Bad, liegt auch auf dieser Wohnebene und eignet sich ideal für Kinder oder Gäste.
Abgerundet wird das Angebot durch die VIP Gäste Suite. Das Schlafzimmer erstrahlt in natürlichem Licht mit Blick in den Innenhof. Das exklusive Ambiente wird ergänzt durch einen begehbaren Kleiderschrank und ein Bad.
Mit dem „Porta Holiday Renditerechner“ können Sie zur ersten Orientierung unverbindlich Ihre potenziellen Einnahmen aus einer möglichen Ferienvermietung berechnen.
Hinweis: Aufgrund der aktuellen Gesetzeslage kann es in bestimmten Gemeinden zu einer Beschränkung der Vermietbarkeit kommen bzw. werden keine neuen touristischen Lizenzen mehr vergeben. Ihr Porta Mallorquina Immobilienberater berät Sie gerne, ob die von Ihnen gewählte Immobilie davon betroffen ist.
Hier geht’s zum Renditerechner.
Palmas Altstadt ist ideal für diejenigen, die mitten im Stadtgeschehen leben möchten.
Kleine verträumte Plätze, enge Gassen, wunderschöne pittoreske Gebäude, belebte Einkaufsstraßen sowie Restaurants und Cafés. In diesem Teil der Stadt ist immer etwas los und die meisten Sehenswürdigkeiten, wie beispielsweise die berühmte Kathedrale La Seu ), die zwischen dem 14. und 19. Jahrhundert erbaut wurde, die arabischen Bäder, der Almundaina-Palast oder das berühmte Ausgehviertel La Lonja, befinden sich in unmittelbarer Nähe. Hier kommt man mit der Geschichte der Hauptstadt Mallorcas in Berührung.
Unternehmen Sie einen Streifzug durch die engen Gassen der Altstadt von Palma und Trinken Sie auf einem der kleinen Plätze einen Kaffee oder ein Glas Wein. Lassen Sie sich von dem Charme der Perle des Mittelmeeres begeistern und Sie werden Palma nie mehr vergessen!
Ganz in der Nähe befindet sich die „Plaza España“. Von hier aus haben Sie Anbindung an ein sehr gut ausgebautes Verkehrsnetz. Egal, ob Sie nun mit Bus, Bahn oder Taxi unterwegs sind.
Die Karte zeigt Ihnen Palma de Mallorca Altstadt und gibt Ihnen einen Überblick über Mallorca.
Eine Auswahl der schönsten Strände, Golfplätze, Yachthäfen sowie Hotels und Restaurants in der Nähe von Palma de Mallorca Altstadt haben wir für Sie im Mallorca-Führer zusammengestellt.
Alle Angaben nach bestem Wissen. Irrtum und Zwischenverkauf vorbehalten. Dieses Exposé ist eine Vorinformation, als Rechtsgrundlage gilt allein der notariell abgeschlossene Kaufvertrag.
Objekt-Nr.:
077960
Ort:
Palma de Mallorca Altstadt
Konstruktionsfläche:
320 m²
Grundstück:
117 m²
Zimmer:
4
Schlafzimmer:
3
Badezimmer:
3
Swimmingpool:
![]()
Meerblick:
-
Energiezertifikat:
in Arbeit
Kaufpreis:
auf Anfrage
Online- Besichtigung:
Vielen Dank für Ihre Anfrage!
Wir werden diese umgehend bearbeiten und uns mit Ihnen in Verbindung setzen.
Palma de Mallorca Altstadt: Historisches Juwel mit Ferienvermietungslizenz schlüsselfertig in Palma
Puerto Andratx: Charmantes Reihenhaus mit Hafen- und Meerblick in Port Andratx
Fornalutx: Sonnig gelegene Finca mit atemberaubendem Ausblick in Fornalutx
Soller: Haus im Renovierungsprozess mit schlüsselfertiger Kaufmöglichkeit in Sóller