+34 971 698 242

In einem begehrten Vorort von Palma befindet sich dieses attraktive Eckgrundstück. Die Umgebung überzeugt durch eine hervorragend ausgebaute Infrastruktur sowie eine ruhige und zugleich gut angebundene Wohnlage. Mit vorhandener Baulizenz bietet das Grundstück die ideale Basis für die Verwirklichung eines modernen Wohntraums.
Geplantes Wohnobjekt:
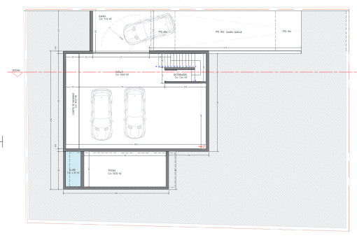
Untergeschoss
Das Untergeschoss bietet mit einer großzügigen Garage für 2 Fahrzeuge (ca. 100 qm) reichlich Platz. Ergänzt wird dieser Bereich durch einen praktischen Maschinenraum, Wassertanks sowie ein Treppenhaus, das die Verbindung zu den oberen Wohnebenen schafft.
Erdgeschoss
Im Erdgeschoss empfängt Sie ein großzügiger Eingangsbereich. Von hier aus öffnet sich der lichtdurchflutete Wohn- und Essbereich mit angrenzender Küche – der perfekte zentrale Treffpunkt für Familie und Gäste. Zusätzlich befinden sich auf dieser Ebene ein Schlafzimmer, ein Badezimmer, eine Waschküche sowie eine weitläufige Terrasse mit Zugang zum Pool (ca. 30 qm), die zum Entspannen einlädt.
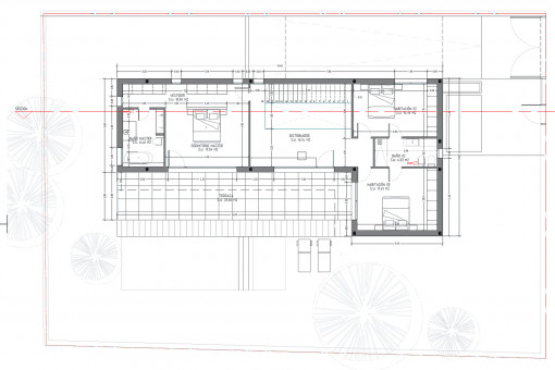
Obergeschoss
Das Obergeschoss beherbergt das Hauptschlafzimmer mit eigenem Ankleidebereich. Zwei weitere Schlafzimmer sowie 2 elegante Badezimmer sorgen für ausreichend Platz und Komfort. Ein zentraler Verteiler rundet die Ebene ab und bietet einen harmonischen Übergang zwischen den Räumen.
Weitere Highlights sind die ruhige und dennoch zentrale Vorortlage von Palma, attraktive Ecklage, eine großzügige, moderne Raumaufteilung, ein Außenbereich mit Pool und Sonnenterrasse.
Hervorzuheben ist außerdem die bereits vorhandene Baulizenz.
Las Maravillas ist eine ruhige Villengegend, die sich am bekannten Strand Playa de Palma befindet und auf Grund der Nähe zur Hauptstadt Palma besonders beliebt ist. Die Gegend ist modern und besonders beliebt bei Residenten.
Die Karte zeigt Ihnen Playa de Palma und gibt Ihnen einen Überblick über Mallorca.
Eine Auswahl der schönsten Strände, Golfplätze, Yachthäfen sowie Hotels und Restaurants in der Nähe von Playa de Palma haben wir für Sie im Mallorca-Führer zusammengestellt.
Alle Angaben nach bestem Wissen. Irrtum und Zwischenverkauf vorbehalten. Dieses Exposé ist eine Vorinformation, als Rechtsgrundlage gilt allein der notariell abgeschlossene Kaufvertrag.